
Appartamenti in corso di ristrutturazione a Sinalunga, loc. Santa Caterina
Immagini, Video e Virtual Tour
Descrizione lotto
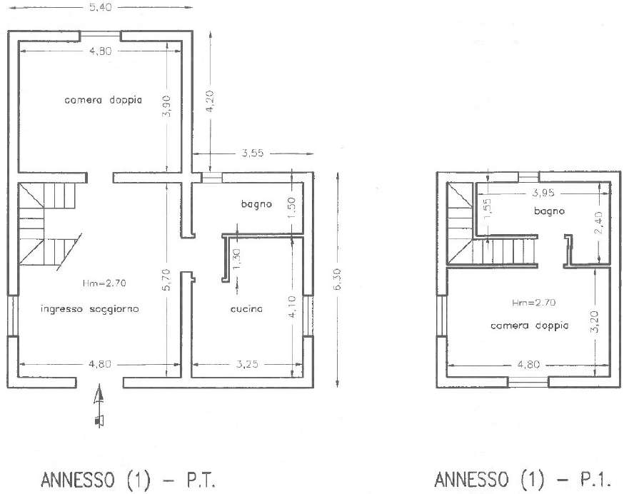
Diritto di piena proprietà su quattro appartamenti ubicati in due fabbricati in corso di definizione e tre corti esclusive. I quattro appartamenti sono stati ricavati dalla ristrutturazione (non ancora ultimata) di un preesistente edificio colonico di tipologia Leopoldina e di un suo annesso. I tre appartamenti ricavati dall'edificio colonico hanno superficie commerciale rispettivamente di 100,30 mq (appartamento “A”), 104,40 mq (appartamento “B”), 112, mq (appartamento “C”), mentre l’appartamento ricavato dall'annesso (appartamento “D”) ha una superficie commerciale di 108 mq.
La informiamo che è possibile prenotare la visita al lotto di suo interesse unicamente attrav...
Diritto di piena proprietà su quattro appartamenti ubicati in due fabbricati in corso di definizione e tre corti esclusive. I quattro appartamenti sono stati ricavati dalla ristrutturazione (non ancora ultimata) di un preesistente edificio colonico di tipologia Leopoldina e di un suo annesso. I tre appartamenti ricavati dall'edificio colonico hanno superficie commerciale rispettivamente di 100,30 mq (appartamento “A”), 104,40 mq (appartamento “B”), 112, mq (appartamento “C”), mentre l’appartamento ricavato dall'annesso (appartamento “D”) ha una superficie commerciale di 108 mq.
La informiamo che è possibile prenotare la visita al lotto di suo interesse unicamente attraverso il Portale delle Vendite Pubbliche (PVP) all'indirizzo https://pvp.giustizia.it
Clicchi sul nostro tutorial per conoscere come trovare la scheda del lotto cercato sul PVP e poi chiederne la visita al nostro servizio.
Video Tutorial: https://youtu.be/V1ABtXKS46g
ATTENZIONE!!!
Non potremo accettare richieste dirette di visita né allo sportello, né per il tramite di altri mezzi.
(questo è un estratto, per una descrizione più dettagliata e completa si invita a prendere visione della perizia o di quanto scritto sull'avviso di vendita).
AVVISO ALL'UTENZA PER LA RICHIESTA DI VISITA:
1) si evidenzia che l'assistenza da parte di questo servizio pubblico nel dare informazioni sulle gare o per visitare un lotto in alienazione è GRATUITA come anche la partecipazione alle gare pubblicate da questo servizio pubblico istituzionale, quindi, qualunque interessato può agire e partecipare ad una gara da solo senza alcuna assistenza di terzi altrui;
2) la richiesta di visita va inoltrata tramite Portale Ministeriale delle Vendite Pubbliche (PVP); la visita al lotto richiesto avverrà nei tempi necessari dettati dai protocolli giudiziari e normativi obbligatori a cui questo staff deve sottostare, appena definiti il richiedente verrà ricontattato dalla Sezione Visite che gli comunicherà giorno e data programmata di visita (N.B.: in genere non per causa di questo staff tempi medi necessari 15 gg. escluso sabato e festivi);
3) SI INVITA ALLA MASSIMA PUNTUALITA' NEL RISPETTO DEGLI APPUNTAMENTI DI VISITA COMUNICATI !
4) TRASCORSI INUTILMENTE SUL POSTO 10 MINUTI DALL'APPUNTAMENTO COMUNICATO SENZA CHE IL RICHIEDENTE SI SIA PRESENTATO, LA VISITA SARA' IMMEDIATAMENTE ANNULLATA D'UFFICIO CON VERBALE.
5) questo Servizio Pubblico potrà assicurare l'accesso ai lotti immobiliari soltanto se la richiesta di visita sia pervenuta almeno quindici giorni prima della scadenza del termine per il deposito dell' offerta, data segnalata in ogni avviso di gara, altre richieste non pervenute per il tramite del PVP non potranno essere evase e saranno cestinate.
6) la richiesta di visita può essere inoltrata solo per singolo lotto che si intende visionare, non per medesima procedura o compendio al medesimo civico, per obbligo normativo il personale di servizio sul posto potrà far visitare solo ed esclusivamente il lotto richiesto tramite PVP, non altri ancorchè vicini o nello stesso luogo.
7) se il richiedente in attesa di appuntamento o dopo perderà interesse alla visita richiesta, almeno tre gg. prima dell'appuntamento comunicato dovrà immediatamente segnalare in modo formale il suo disinteresse all'Ufficio Pianificazione ai recapiti sotto indicati specificando suo nome, cognome, lotto richiesto tramite PVP :
3397337017 sms/whatsapp
3386846315 sms/wathsapp
visite.ivg@gmail.com e-mail
8) il mancato preavviso di presenza alla visita o l'eccessivo ritardo comporteranno rimborso a carico del richiedente,
9) per qualsiasi richiesta o necessità inerente al lotto o alle gare il servizio è a disposizione in orario di ufficio.
Numero Procedura | 10/2024 |
Tipo Procedura | Esecuzione immobiliare post legge 80 |
Numero IVG | 248/25si0 |
Tipo vendita | Senza incanto |
Modalità vendita | Sincrona mista |
Data vendita | 13/01/2026 15:30 |
Termine presentazione offerte | 12/01/2026 12:00 |
Prezzo base | € 221.000,00 |
Offerta minima | € 166.000,00 |
Rilancio Minimo | € 2.000 |
Luogo Vendita | uffici Istituto Vendite Giudiziarie in Via del Pozzo n.1, Monteriggioni (SI) |
Tribunale | Tribunale di SIENA |
Stima | 294.000,00 € |
SOGGETTI
Giudice
Nome | Flavio Mennella |
DETTAGLIO LOTTO
CODICE LOTTO | unico |
GENERE | Immobili |
CATEGORIA | Immobile residenziale |
TITOLO | Appartamenti in corso di ristrutturazione a Sinalunga, loc. Santa Caterina |

10-24-Perizia.pdf

10-24-Planimetrie.pdf

10-24-Documentazione-fotografica.pdf

av_vnd_10-24-avv-2-si-13-01-26.pdf
DETTAGLI BENI
INDIRIZZO | Località Santa Caterina snc , 53048 Sinalunga ( SI ) |
CATEGORIA | Immobili |
TIPOLOGIA | Fabbricato in corso di costruzione |
DESCRIZIONE
Diritto di piena proprietà su quattro appartamenti ubicati in due fabbricati in corso di definizione e tre corti esclusive. I quattro appartamenti sono stati ricavati dalla ristrutturazione (non ancora ultimata) di un preesistente edificio colonico di tipologia Leopoldina e di un suo annesso. I tre appartamenti ricavati dall'edificio colonico hanno superficie commerciale rispettivamente di 100,30 mq (appartamento “A”), 104,40 mq (appartamento “B”), 112, mq (appartamento “C”), mentre l’appartamento ricavato dall'annesso (appartamento “D”) ha una superficie commerciale di 108 mq.
La informiamo che è possibile prenotare la visita al lotto di suo interesse unicamente attraverso il Portale delle Vendite Pubbliche (PVP) all'indirizzo https://pvp.giustizia.it
Clicchi sul nostro tutorial per conoscere come trovare la scheda del lotto cercato sul PVP e poi chiederne la visita al nostro servizio.
Video Tutorial: https://youtu.be/V1ABtXKS46g
ATTENZIONE!!!
Non potremo accettare richieste dirette di visita né allo sportello, né per il tramite di altri mezzi.
(questo è un estratto, per una descrizione più dettagliata e completa si invita a prendere visione della perizia o di quanto scritto sull'avviso di vendita).
AVVISO ALL'UTENZA PER LA RICHIESTA DI VISITA:
1) si evidenzia che l'assistenza da parte di questo servizio pubblico nel dare informazioni sulle gare o per visitare un lotto in alienazione è GRATUITA come anche la partecipazione alle gare pubblicate da questo servizio pubblico istituzionale, quindi, qualunque interessato può agire e partecipare ad una gara da solo senza alcuna assistenza di terzi altrui;
2) la richiesta di visita va inoltrata tramite Portale Ministeriale delle Vendite Pubbliche (PVP); la visita al lotto richiesto avverrà nei tempi necessari dettati dai protocolli giudiziari e normativi obbligatori a cui questo staff deve sottostare, appena definiti il richiedente verrà ricontattato dalla Sezione Visite che gli comunicherà giorno e data programmata di visita (N.B.: in genere non per causa di questo staff tempi medi necessari 15 gg. escluso sabato e festivi);
3) SI INVITA ALLA MASSIMA PUNTUALITA' NEL RISPETTO DEGLI APPUNTAMENTI DI VISITA COMUNICATI !
4) TRASCORSI INUTILMENTE SUL POSTO 10 MINUTI DALL'APPUNTAMENTO COMUNICATO SENZA CHE IL RICHIEDENTE SI SIA PRESENTATO, LA VISITA SARA' IMMEDIATAMENTE ANNULLATA D'UFFICIO CON VERBALE.
5) questo Servizio Pubblico potrà assicurare l'accesso ai lotti immobiliari soltanto se la richiesta di visita sia pervenuta almeno quindici giorni prima della scadenza del termine per il deposito dell' offerta, data segnalata in ogni avviso di gara, altre richieste non pervenute per il tramite del PVP non potranno essere evase e saranno cestinate.
6) la richiesta di visita può essere inoltrata solo per singolo lotto che si intende visionare, non per medesima procedura o compendio al medesimo civico, per obbligo normativo il personale di servizio sul posto potrà far visitare solo ed esclusivamente il lotto richiesto tramite PVP, non altri ancorchè vicini o nello stesso luogo.
7) se il richiedente in attesa di appuntamento o dopo perderà interesse alla visita richiesta, almeno tre gg. prima dell'appuntamento comunicato dovrà immediatamente segnalare in modo formale il suo disinteresse all'Ufficio Pianificazione ai recapiti sotto indicati specificando suo nome, cognome, lotto richiesto tramite PVP :
3397337017 sms/whatsapp
3386846315 sms/wathsapp
visite.ivg@gmail.com e-mail
8) il mancato preavviso di presenza alla visita o l'eccessivo ritardo comporteranno rimborso a carico del richiedente,
9) per qualsiasi richiesta o necessità inerente al lotto o alle gare il servizio è a disposizione in orario di ufficio.
ESECUZIONI IMMOBILIARI SIENA
La informiamo che è possibile prenotare la visita al lotto di suo interesse unicamente attraverso il Portale delle Vendite Pubbliche (PVP) all'indirizzo https://pvp.giustizia.it
Clicchi sul nostro tutorial per conoscere come trovare la scheda del lotto cercato sul PVP e poi chiederne la visita al nostro servizio: Clicca qui per il Video Tutorial
ATTENZIONE!!!
Non potremo accettare richieste dirette di visita ne’ allo sportello, ne’ per il tramite di altri mezzi.
(questo è un estratto, per una descrizione più dettagliata e completa si invita a prendere visione della perizia o di quanto scritto sull’avviso di vendita).
E’ OBBLIGATORIO:
- 1. CONSULTARE L’ORDINANZA o AVVISO DI VENDITA: dai quali si evincono le disposizioni del Giudice, le date, le modalità di vendita e il termine per il deposito delle offerte.
- 2. CONSULTARE LA PERIZIA dove si reperiscono i dati catastali, eventuali difformità o abusi, e quanto è necessario ai fini della conoscenza dell’immobile.
- 3. PRESENTARE DOMANDA IN BUSTA CHIUSA presso la Cancelleria del Tribunale, o presso il delegato, allegando assegno/i circolare/i non trasferibile/i secondo le modalità e le disposizioni richieste nell’ordinanza o nell’avviso di vendita allegato alla presente scheda.
ATTENZIONE: LA PARTECIPAZIONE ALLE VENDITE ATTESTA LA PERFETTA CONOSCENZA DELLA PERIZIA, DELL’ORDINANZA DI VENDITA E DI TUTTE LE DISPOSIZIONI, O INFORMAZIONI, IN ESSE CONTENUTE PRIMA DI DEPOSITARE OFFERTE DI ACQUISTO CONTROLLARE EVENTUALI MODIFICHE O AGGIORNAMENTI NELLA SCHEDA DEL BENE
- STATO DI OCCUPAZIONE per essere edotti sullo stato di occupazione, sugli oneri condominiali, sullo stato dei luoghi contattare il custode giudiziario.
Beni della stessa procedura
Storico Aste
Data | Stato | Prezzo base | Offerta minima | Corrente |
---|---|---|---|---|
30/09/2025 | Deserta | € 294.000,00 | € 221.000,00 | |
13/01/2026 | In corso | € 221.000,00 | € 166.000,00 | CORRENTE |