Ufficio a Colle di Val D'Elsa, via Bilenchi - Lotto 5

Data vendita : 13/01/2026 12:30
Termine presentazione offerte : 12/01/2026 12:00
Procedura : Nr. 18/2022
In corso

Immagini, Video e Virtual Tour

Descrizione lotto

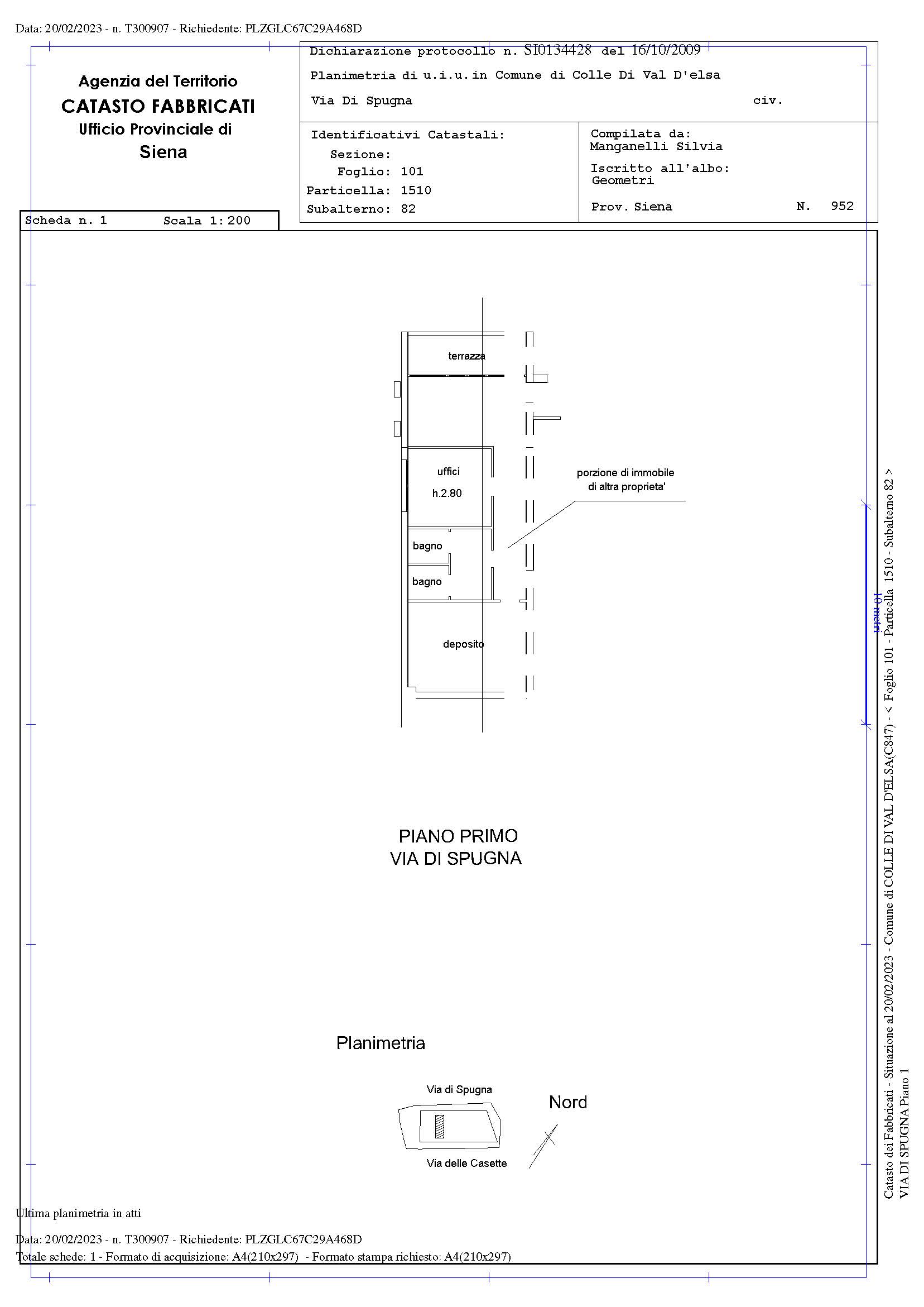
Diritto di piena ed intera proprietà in parte (subalterno 83) e di proprietà superficiaria per altra (subalterno 82) di locali direzionali e di servizio al piano seminterrato 1° oltre a diritto di piena ed intera proprietà di magazzino con aree esterne al piano seminterrato 2° il tutto posto in Comune di Colle di Val d'Elsa, Via Romano Bilenchi n. 80.
L'unità immobiliare è posta al piano seminterrato 1° ed è costituita da ingresso con adiacente terrazza, disimpegno, ufficio, antibagno con 2 bagni, deposito e vano tecnico.
Il magazzino si trova al piano seminterrato 2° ed è costituito da un locale con forma irregolare, altezze minima di 2,40 metri, superficie utile pari a 23 mq e s...

Diritto di piena ed intera proprietà in parte (subalterno 83) e di proprietà superficiaria per altra (subalterno 82) di locali direzionali e di servizio al piano seminterrato 1° oltre a diritto di piena ed intera proprietà di magazzino con aree esterne al piano seminterrato 2° il tutto posto in Comune di Colle di Val d'Elsa, Via Romano Bilenchi n. 80.
L'unità immobiliare è posta al piano seminterrato 1° ed è costituita da ingresso con adiacente terrazza, disimpegno, ufficio, antibagno con 2 bagni, deposito e vano tecnico.
Il magazzino si trova al piano seminterrato 2° ed è costituito da un locale con forma irregolare, altezze minima di 2,40 metri, superficie utile pari a 23 mq e superficie lorda pari a 29 mq, con ingresso dagli spazi esterni attraverso porta metallica.


(questo è un estratto, per una descrizione più dettagliata e completa si invita a prendere visione della perizia o di quanto scritto sull’avviso di vendita).

Numero Procedura 18/2022
Tipo Procedura Fallimento (nuovo rito)
Numero IVG 87/25Csi5
Tipo vendita Competitiva
Modalità vendita Sincrona mista
Data vendita 13/01/2026 12:30
Termine presentazione offerte 12/01/2026 12:00
Prezzo base € 41.900,00
Rilancio Minimo € 1.000,00
Luogo Vendita uffici Istituto Vendite Giudiziarie in Via del Pozzo n.1, Monteriggioni (SI)
Tribunale Tribunale di SIENA
Stima 127.000,00 €

SOGGETTI

Giudice

Nome Valentina Lisi

Curatore

Nome Laura Borghetti
Storico aste

DETTAGLIO LOTTO

CODICE LOTTO 5
GENERE Immobili
CATEGORIA Immobile commerciale
TITOLO Ufficio a Colle di Val D'Elsa, via Bilenchi - Lotto 5

DETTAGLI BENI

INDIRIZZO Via Romano Bilenchi n. 80 , 53034 Colle di Val d'Elsa ( SI )
CATEGORIA Immobili
TIPOLOGIA Uffici e studi privati

DESCRIZIONE Diritto di piena ed intera proprietà in parte (subalterno 83) e di proprietà superficiaria per altra (subalterno 82) di locali direzionali e di servizio al piano seminterrato 1° oltre a diritto di piena ed intera proprietà di magazzino con aree esterne al piano seminterrato 2° il tutto posto in Comune di Colle di Val d'Elsa, Via Romano Bilenchi n. 80.
L'unità immobiliare è posta al piano seminterrato 1° ed è costituita da ingresso con adiacente terrazza, disimpegno, ufficio, antibagno con 2 bagni, deposito e vano tecnico.
Il magazzino si trova al piano seminterrato 2° ed è costituito da un locale con forma irregolare, altezze minima di 2,40 metri, superficie utile pari a 23 mq e superficie lorda pari a 29 mq, con ingresso dagli spazi esterni attraverso porta metallica.


(questo è un estratto, per una descrizione più dettagliata e completa si invita a prendere visione della perizia o di quanto scritto sull’avviso di vendita).

Non ci sono modalità di partecipazione associate al lotto

Beni della stessa procedura

Storico Aste

Data Stato Prezzo base Offerta minima Corrente
13/03/2024 Deserta € 127.000,00
26/09/2024 Deserta € 102.000,00
10/01/2025 Deserta € 81.600,00
22/05/2025 Deserta € 65.300,00
18/09/2025 Deserta € 52.300,00
13/01/2026 In corso € 41.900,00 CORRENTE
© 2022 Giustiziaivg.it | ISTITUTO GESTIONI E SERVIZI (I.G.E S.) S.r.l. | Via del Pozzo 1 - Località San Martino, 53035 Monteriggioni (SI) | P.IVA 00851290528
Applicazione Web Realizzata da