
Complesso aziendale opificio e beni mobili in Colle di Val d'Elsa, loc. San Marziale
Immagini, Video e Virtual Tour
Descrizione lotto
Complesso aziendale composto da un opificio comprensivo di beni mobili e marchio.
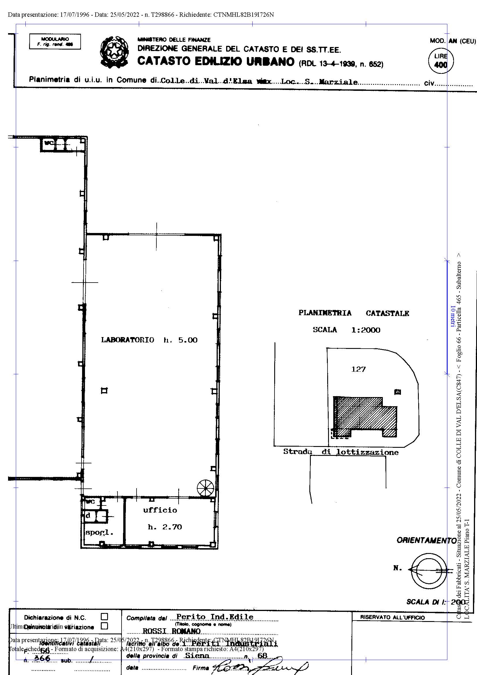
L’opificio si sviluppa al piano terra ed al piano primo ed è formata da un corpo fabbrica di superficie totale lorda al piano terra pari a circa 1.770 mq. L’immobile è stato ampliato nel 1990 con la costruzione di un edificio in aderenza e comunicante di circa 332 mq e 57 mq di soppalco.
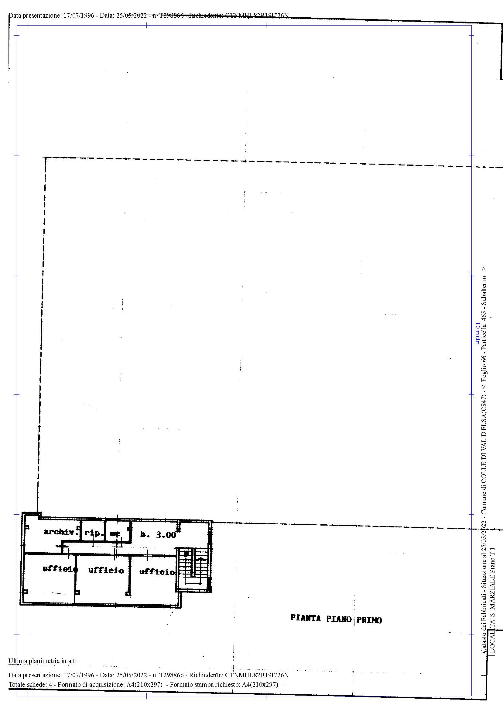
Al piano terra si sviluppa l’opificio vero e proprio (laboratorio) con altri ambienti destinati a spogliatoi, wc, uffici, mensa e centrale termica mentre al piano primo si collocano gli ambienti direzionali (uffici e wc) per una superficie di circa 114 mq. L’ingresso alla struttura è disponibile direttamente dalla ad...
Complesso aziendale composto da un opificio comprensivo di beni mobili e marchio.
L’opificio si sviluppa al piano terra ed al piano primo ed è formata da un corpo fabbrica di superficie totale lorda al piano terra pari a circa 1.770 mq. L’immobile è stato ampliato nel 1990 con la costruzione di un edificio in aderenza e comunicante di circa 332 mq e 57 mq di soppalco.
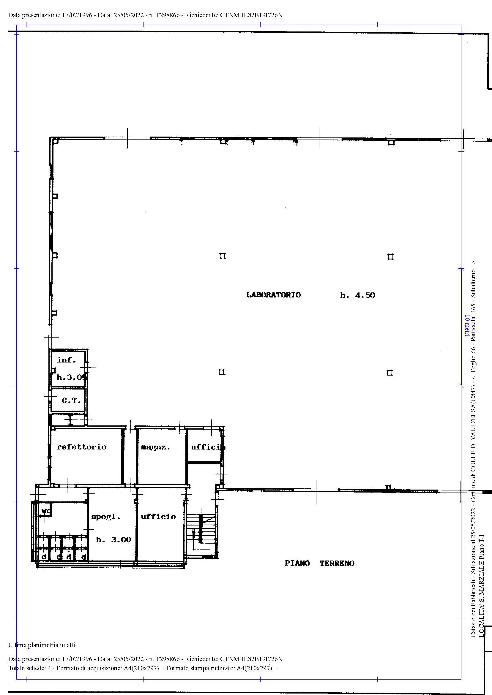
Al piano terra si sviluppa l’opificio vero e proprio (laboratorio) con altri ambienti destinati a spogliatoi, wc, uffici, mensa e centrale termica mentre al piano primo si collocano gli ambienti direzionali (uffici e wc) per una superficie di circa 114 mq. L’ingresso alla struttura è disponibile direttamente dalla adiacente via che attraversa San Marziale, tramite un ingresso carrabile con cancello automatizzato. L’attuale utilizzo dell’opificio e che caratterizza la ditta in oggetto consiste nella pluriennale esperienza nella costruzione di stampi e attrezzature per l’industria del vetro e del cristallo oltre a macchinari industriali in genere.
Internamente l’opificio si articola con la presenza di un vano scale che unisce il piano terreno destinato alle lavorazioni con il piano primo utilizzato come uffici. Sull'ala “nuova”, realizzata nel 1990, insiste una grande stanza destinata per lo più a magazzinaggio di vecchi stampi. Sempre su tale blocco in ampliamento sulla parte finale del piano terra troviamo un altro ambiente destinato ad ufficio sormontato da un locale soppalco anch’esso utilizzato come deposito di articoli vari e accessibile tramite una piccola scala a chiocciola in metallo.
La struttura del capannone è in pannelli prefabbricati e copertura a capriate in cemento armato, con punti luce ed aperture in metallo e vetro; i parapetti interni sono in laterizio e/o in pannelli prefabbricati a vista. La copertura in eternit è stata nel 2013 interamente sostituita da pannelli sandwich in parte curvi ed in parte piani; la pavimentazione è carrabile di tipo industriale mentre i rivestimenti ed i pavimenti dei bagni sono in ceramica. L’impianto di riscaldamento è affidato a dei fan coil sugli ambienti riscaldati ed è presente inoltre un impianto di aria compressa, l’allaccio alla rete idrica, elettrica, gas metano e di smaltimento alla fognatura comunale. Apparentemente gli ambienti si presentano privi di rilevanti lesioni strutturali, lo stato conservativo è buono e ben curato così come le caratteristiche costruttive relativamente a questo genere di edifici.
Completa la proprietà immobiliare un resede esterno di pertinenza di circa 4.167 mq (totali 5.950 mq come da superficie catastale) dove insiste una cabina elettrica e locale contatori di circa 13 mq complessivi oltre ad un'altra tettoia (realizzata in assenza di atti autorizzativi) con struttura in ferro, lamiere e con copertura impermeabile.
L’unità immobiliare risulta censita al Catasto Fabbricati del Comune di Colle di Val d’Elsa al Foglio 66 particella 465 (Categoria D/1 rendita € 8.263,31).
Fanno parte del compendio anche i beni mobili e mobili registrati (macchinari, macchine, attrezzature, arredi e macchine da ufficio) che si trovano all’interno della struttura nonchè il marchio.
(questo è un estratto, per una descrizione più dettagliata e completa si invita a prendere visione della perizia o di quanto scritto sull'avviso di vendita).
Numero Procedura | 34/2021 |
Tipo Procedura | Fallimento (nuovo rito) |
Numero IVG | 90/2021 |
Tipo vendita | Competitiva |
Modalità vendita | Sincrona mista |
Data vendita | 11/12/2025 10:30 |
Termine presentazione offerte | 10/12/2025 12:00 |
Prezzo base | € 421.900,00 |
Rilancio Minimo | € 10.000,00 |
Luogo Vendita | uffici Istituto Vendite Giudiziarie in Via del Pozzo n.1, Monteriggioni (SI) |
Tribunale | Tribunale di SIENA |
Stima | 1.011.400,00 € |
SOGGETTI
Giudice
Nome | Gianmarco Marinai |
Curatore
Nome | Emanuela Giorgini |

34-21-Perizia-immobili-Catoni.pdf

34-21-Planimetria-catastale.pdf

34-21-Doc-foto-immobili.pdf

34-21-perizia-beni-mobili-Vezzosi-7-11-2023.pdf

34-21-perizia-privacy-Vezzosi-07-11-2023.pdf

av_vnd_34-21-avviso-5-asta-11-12-25.pdf
DETTAGLIO LOTTO
CODICE LOTTO | Unico |
GENERE | Immobili |
CATEGORIA | Immobile industriale |
TITOLO | Complesso aziendale opificio e beni mobili in Colle di Val d'Elsa, loc. San Marziale |

34-21-Perizia-immobili-Catoni.pdf

34-21-Planimetria-catastale.pdf

34-21-Doc-foto-immobili.pdf

34-21-perizia-beni-mobili-Vezzosi-7-11-2023.pdf

34-21-perizia-privacy-Vezzosi-07-11-2023.pdf

av_vnd_34-21-avviso-5-asta-11-12-25.pdf
DETTAGLI BENI
INDIRIZZO | Loc. San Marziale 7 , 53034 Colle di Val d'Elsa ( SI ) |
CATEGORIA | Immobili |
TIPOLOGIA | Opifici |
DESCRIZIONE
Complesso aziendale composto da un opificio comprensivo di beni mobili e marchio.
L’opificio si sviluppa al piano terra ed al piano primo ed è formata da un corpo fabbrica di superficie totale lorda al piano terra pari a circa 1.770 mq. L’immobile è stato ampliato nel 1990 con la costruzione di un edificio in aderenza e comunicante di circa 332 mq e 57 mq di soppalco.
Al piano terra si sviluppa l’opificio vero e proprio (laboratorio) con altri ambienti destinati a spogliatoi, wc, uffici, mensa e centrale termica mentre al piano primo si collocano gli ambienti direzionali (uffici e wc) per una superficie di circa 114 mq. L’ingresso alla struttura è disponibile direttamente dalla adiacente via che attraversa San Marziale, tramite un ingresso carrabile con cancello automatizzato. L’attuale utilizzo dell’opificio e che caratterizza la ditta in oggetto consiste nella pluriennale esperienza nella costruzione di stampi e attrezzature per l’industria del vetro e del cristallo oltre a macchinari industriali in genere.
Internamente l’opificio si articola con la presenza di un vano scale che unisce il piano terreno destinato alle lavorazioni con il piano primo utilizzato come uffici. Sull'ala “nuova”, realizzata nel 1990, insiste una grande stanza destinata per lo più a magazzinaggio di vecchi stampi. Sempre su tale blocco in ampliamento sulla parte finale del piano terra troviamo un altro ambiente destinato ad ufficio sormontato da un locale soppalco anch’esso utilizzato come deposito di articoli vari e accessibile tramite una piccola scala a chiocciola in metallo.
La struttura del capannone è in pannelli prefabbricati e copertura a capriate in cemento armato, con punti luce ed aperture in metallo e vetro; i parapetti interni sono in laterizio e/o in pannelli prefabbricati a vista. La copertura in eternit è stata nel 2013 interamente sostituita da pannelli sandwich in parte curvi ed in parte piani; la pavimentazione è carrabile di tipo industriale mentre i rivestimenti ed i pavimenti dei bagni sono in ceramica. L’impianto di riscaldamento è affidato a dei fan coil sugli ambienti riscaldati ed è presente inoltre un impianto di aria compressa, l’allaccio alla rete idrica, elettrica, gas metano e di smaltimento alla fognatura comunale. Apparentemente gli ambienti si presentano privi di rilevanti lesioni strutturali, lo stato conservativo è buono e ben curato così come le caratteristiche costruttive relativamente a questo genere di edifici.
Completa la proprietà immobiliare un resede esterno di pertinenza di circa 4.167 mq (totali 5.950 mq come da superficie catastale) dove insiste una cabina elettrica e locale contatori di circa 13 mq complessivi oltre ad un'altra tettoia (realizzata in assenza di atti autorizzativi) con struttura in ferro, lamiere e con copertura impermeabile.
L’unità immobiliare risulta censita al Catasto Fabbricati del Comune di Colle di Val d’Elsa al Foglio 66 particella 465 (Categoria D/1 rendita € 8.263,31).
Fanno parte del compendio anche i beni mobili e mobili registrati (macchinari, macchine, attrezzature, arredi e macchine da ufficio) che si trovano all’interno della struttura nonchè il marchio.
(questo è un estratto, per una descrizione più dettagliata e completa si invita a prendere visione della perizia o di quanto scritto sull'avviso di vendita).
Non ci sono modalità di partecipazione associate al lotto
Beni della stessa procedura
Storico Aste
Data | Stato | Prezzo base | Offerta minima | Corrente |
---|---|---|---|---|
19/04/2023 | Sospesa | € 1.011.400,00 | ||
25/07/2024 | Deserta | € 1.000.000,00 | ||
23/10/2024 | Deserta | € 750.000,00 | ||
09/10/2025 | Deserta | € 562.500,00 | ||
11/12/2025 | In corso | € 421.900,00 | CORRENTE |