Appartamento a Sovicille, loc. San Rocco a Pilli - Lotto 1
Immagini, Video e Virtual Tour
Descrizione lotto
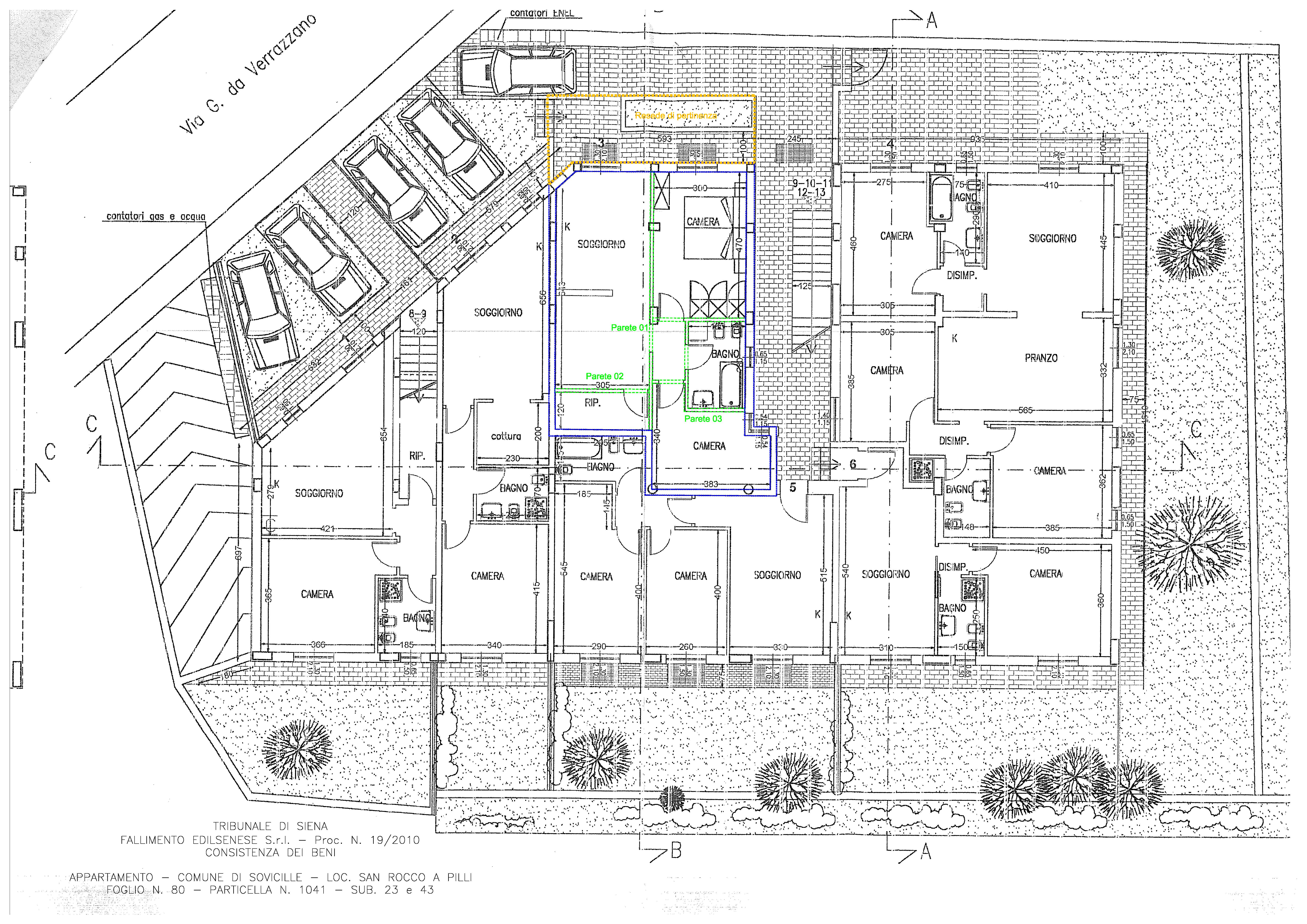
Diritto di piena ed intera proprietà di appartamento con cantina e garage, posto in Comune di Sovicille, Loc. San Rocco a Pilli, Via G. da Verrazzano.
L’abitazione, alla quale si accede mediante un piccolo resede di pertinenza, presenta ingresso esclusivo ed è composta di tre vani, soggiorno/pranzo ( di 20,80 mq), camera matrimoniale (di 14,00 mq netti), camera singola (di 9,88 mq netti); a questi si aggiungono un locale accessorio (ripostiglio di 3,66 mq calpestabili), un servizio igienico (bagno di 5,18 mq calpestabili) ed un corridoio di collegamento tra il soggiorno e le camere. L’appartamento ha una superficie calpestabile complessiva di 55,50 mq.
Si precisa che la cantina è for...
Diritto di piena ed intera proprietà di appartamento con cantina e garage, posto in Comune di Sovicille, Loc. San Rocco a Pilli, Via G. da Verrazzano.
L’abitazione, alla quale si accede mediante un piccolo resede di pertinenza, presenta ingresso esclusivo ed è composta di tre vani, soggiorno/pranzo ( di 20,80 mq), camera matrimoniale (di 14,00 mq netti), camera singola (di 9,88 mq netti); a questi si aggiungono un locale accessorio (ripostiglio di 3,66 mq calpestabili), un servizio igienico (bagno di 5,18 mq calpestabili) ed un corridoio di collegamento tra il soggiorno e le camere. L’appartamento ha una superficie calpestabile complessiva di 55,50 mq.
Si precisa che la cantina è formata da un unico locale diversamente da quanto censito al Catasto Fabbricati dove risultano ancora due unità separate.
L’unità immobiliare risulta censita al Catasto Fabbricati del Comune di Sovicille al Foglio 80, particella 1041, subalterni 23 e 43 graffati (Cat. A/3, classe U, consistenza 5 vani, rendita € 464,81), particella 1041 subalterno 7 (Cat. C/2, classe 3, consistenza mq 6 catastali, rendita € 13,63), particella 1041 subalterno 8 (Cat. C/2, classe 6, consistenza mq 9 catastali, rendita € 33,47) e particella 1041 subalterno 9 (Cat. C/6, classe 6, consistenza mq 15 catastali, rendita € 37,96).
(questo è un estratto, per una descrizione più dettagliata e completa si invita a prendere visione della perizia o di quanto scritto sull’avviso di vendita).
| Numero Procedura | 19/2010 |
| Tipo Procedura | Fallimento (nuovo rito) |
| Numero IVG | 88/25Csi1 |
| Tipo vendita | Competitiva |
| Modalità vendita | Sincrona mista |
| Data vendita | 21/01/2026 16:00 |
| Termine presentazione offerte | 20/01/2026 12:00 |
| Prezzo base | € 105.400,00 |
| Rilancio Minimo | € 1.000,00 |
| Luogo Vendita | uffici Istituto Vendite Giudiziarie in Via del Pozzo n.1, Monteriggioni (SI) |
| Tribunale | Tribunale di SIENA |
| Stima | 105.400,00 € |
SOGGETTI
Curatore
| Nome | MASSIMILIANO FABBRINI |
Giudice
| Nome | Marta Dell'Unto |
DETTAGLIO LOTTO
| CODICE LOTTO | 1 |
| GENERE | Immobili |
| CATEGORIA | Immobile residenziale |
| TITOLO | Appartamento a Sovicille, loc. San Rocco a Pilli - Lotto 1 |
19-10-Lotto-1-planimetrie.pdf
19-10-Lotto-1-Perizia-Scarpelli-18-12-2018.pdf
19-10-Lotto-1-all-Foto.pdf
av_vnd_19-10-avviso-3-asta-21-01-26.pdf
DETTAGLI BENI
| INDIRIZZO | Loc. San Rocco a Pilli, Via G. da Verrazzano , 53018 Sovicille ( SI ) |
| CATEGORIA | Immobili |
| TIPOLOGIA | Abitazione di tipo economico |
DESCRIZIONE
Diritto di piena ed intera proprietà di appartamento con cantina e garage, posto in Comune di Sovicille, Loc. San Rocco a Pilli, Via G. da Verrazzano.
L’abitazione, alla quale si accede mediante un piccolo resede di pertinenza, presenta ingresso esclusivo ed è composta di tre vani, soggiorno/pranzo ( di 20,80 mq), camera matrimoniale (di 14,00 mq netti), camera singola (di 9,88 mq netti); a questi si aggiungono un locale accessorio (ripostiglio di 3,66 mq calpestabili), un servizio igienico (bagno di 5,18 mq calpestabili) ed un corridoio di collegamento tra il soggiorno e le camere. L’appartamento ha una superficie calpestabile complessiva di 55,50 mq.
Si precisa che la cantina è formata da un unico locale diversamente da quanto censito al Catasto Fabbricati dove risultano ancora due unità separate.
L’unità immobiliare risulta censita al Catasto Fabbricati del Comune di Sovicille al Foglio 80, particella 1041, subalterni 23 e 43 graffati (Cat. A/3, classe U, consistenza 5 vani, rendita € 464,81), particella 1041 subalterno 7 (Cat. C/2, classe 3, consistenza mq 6 catastali, rendita € 13,63), particella 1041 subalterno 8 (Cat. C/2, classe 6, consistenza mq 9 catastali, rendita € 33,47) e particella 1041 subalterno 9 (Cat. C/6, classe 6, consistenza mq 15 catastali, rendita € 37,96).
(questo è un estratto, per una descrizione più dettagliata e completa si invita a prendere visione della perizia o di quanto scritto sull’avviso di vendita).
Non ci sono modalità di partecipazione associate al lotto
Beni della stessa procedura
Storico Aste
| Data | Stato | Prezzo base | Offerta minima | Corrente |
|---|---|---|---|---|
| 07/02/2024 | Aggiudicato | € 105.400,00 | ||
| 26/03/2025 | Aggiudicato | € 105.400,00 | ||
| 21/01/2026 | In corso | € 105.400,00 | CORRENTE |
Giustizia IVG